XP19
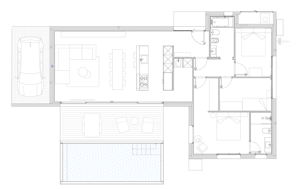
XP19 es una casa de hormigón prefabricado de dimensiones contenidas que condensa todo lo necesario para vivir con plenitud en formato compacto. Los paneles de hormigón, de geometría dúctil y líneas limpias, dibujan una estética minimalista que se hace ligera gracias a las grandes aberturas orientadas hacia la terraza y la piscina. Estas rendijas de suelo a techo disuelven el límite interior-exterior y prolongan el espacio diáfano de estar-comedor-cocina hasta el jardín, permitiendo que luz, aire y reflejos de agua vertebren la vida cotidiana.
La modulación prefabricada acelera la ejecución, garantiza precisión y minimiza residuos, mientras que el aislamiento integrado y los cristales de baja emisividad aseguran una demanda energética muy baja. El mobiliario a medida aprovecha cada rincón y los pavimentos continuos de microcemento refuerzan la sensación de amplitud. XP19 demuestra que la pequeña escala puede ofrecer una experiencia habitable generosa, donde esencia arquitectónica y confort contemporáneo conviven sin renunciar a la conexión íntima con el exterior.









